Cách lập sơ đồ kho như thế nào? Cách vẽ sơ đồ kho hàng sao cho đơn giản mà vẫn có thể quản lý kho hiệu quả? Đọc ngay bài viết sau đây để tìm hiểu cách lập sơ đồ kho và 1 số mẫu sơ đồ kho tham khảo giúp bạn vận hành kho hàng thuận tiện.

Cách vẽ sơ đồ kho hàng hợp lý cho các cửa hàng bán lẻ.
1. Sơ đồ kho hàng là gì?
Sơ đồ kho hàng là 1 bản vẽ thể hiện các khu vực trong kho hàng, các giá kệ để sắp xếp hàng hoá, khu vực nhận hàng, đóng gói hàng,…
Bên cạnh các khu vực của kho, sơ đồ kho hàng cũng cần thể hiện được các vị trí cửa sổ, cửa ra vào,… để có thể bố trí các giá kệ, thiết bị và lối đi trong sơ đồ kho sao cho hợp lý.
2. Các bước vẽ sơ đồ kho hàng
Cách lập sơ đồ kho hàng cũng không quá phức tạp, bạn chỉ cần làm theo 3 bước dưới đây là có thể vẽ sơ đồ kho hàng hợp lý và dễ dàng quản lý.
Bước 1: Chuẩn bị sơ đồ mặt bằng kho
Nhiều người thưởng rất hay chủ quan và cho rằng việc sắp xếp kho hàng và bố trí kho hàng họ có thể nắm trong lòng bàn tay. Tuy nhiên, nếu không lập sơ đồ kho bạn sẽ dễ gặp phải lúng túng khi thiết lập kho hàng và làm mất thời gian tìm kiếm, nhặt hàng, đóng gói hàng sau này.
Nếu như bạn đi thuê mặt bằng kho, hãy yêu cầu chủ cung cấp cho bạn bản vẽ mặt bằng kho. Nếu không bạn cần trực tiếp đến kho đo đạc và lên bản vẽ mặt bằng kho với kích thước chi tiết.

Cách lập sơ đồ kho hàng đơn giản, hiệu quả.
Bước 2: Lựa chọn phương pháp lập sơ đồ kho
Có rất nhiều cách lập sơ đồ kho và việc bạn lựa chọn phương pháp nào sẽ tuỳ thuộc vào quy mô kinh doanh cũng như ngân sách hoạt động.
Có 3 cách vẽ sơ đồ kho hàng phổ biến nhất hiện nay đó là:
- Thuê kiến trúc sư: Nếu quy mô kinh doanh lớn, kho bãi có diện tích rộng và bạn có rất nhiều hàng hoá và các loại máy móc thiết bị trong kho hàng như xe nâng, băng chuyền,… thì nên thuê 1 đội ngũ kiến trúc sư chuyên nghiệp để thiết kế sơ đồ kho.
- Dùng công cụ online: Có 1 số tool online giúp bạn vẽ sơ đồ kho hàng 1 cách dễ dàng và chuyên nghiệp. Công cụ mà tôi khuyên bạn nên sử dụng là SmartDraw. Đây là 1 tool online hoàn toàn miễn phí, rất đơn giản và dễ sử dụng. Công cụ còn gợi ý sẵn các khu vực cơ bản và vị trí phù hợp để bạn có thể bắt đầu vẽ sơ đồ kho hàng mà không lo thiếu sót hay đi sai hướng.
- Vẽ sơ đồ kho hàng trong Excel: Đây cũng là 1 công cụ miễn phí để lập sơ đồ kho hàng. Với Excel, bạn cũng có thể bố trí các khu vực kho và tự mình sắp xếp các trang thiết bị theo nhu cầu.

Có nhiều phương pháp giúp bạn vẽ sơ đồ kho hàng chuyên nghiệp.
Bước 3: Bố trí các khu vực kho
Đây là bước cuối cùng để lập sơ đồ kho. Muốn có 1 sơ đồ kho hợp lý, trước hết bạn cần các khu vực chính cần có của 1 kho hàng sau đó sắp xếp thành các hàng nhỏ hơn.
Thông thường, 1 kho hàng sẽ được chia ra làm 3 khu vực chính:
- Khu vực hoạt động: Là các khu vực diễn ra các hoạt động chính của kho như nhận hàng, tiếp nhận đơn hàng và đóng gói hàng, nơi chứa các thiết bị, tấm pallet để di chuyển hàng hoá trong kho,…
- Khu vực lưu trữ: Là khu vực có các giá, kệ để hàng dùng để lưu kho các sản phẩm của bạn. Khu vực này cần thiết kế sao cho thuận tiện cho việc sắp xếp hàng hoá cũng như nhặt hàng khi có đơn hàng.
- Khoảng trống: Các khoảng trống trong kho hàng cũng là 1 yếu tố vô cùng quan trọng. Các lối đi cần để rộng bao nhiêu mới đủ để cho các thiết bị đi vào hay nhân viên có thể di chuyển và lấy hàng dễ dàng? Các khoảng trống cần thiết kế theo quy trình quản lý kho thành 1 vòng tròn khép kín sẽ giúp cho việc quản lý kho được hiệu quả hơn.

Bố trí các khu vực kho hợp lý sẽ giúp bạn quản lý kho hiệu quả hơn.
3. Các khu vực và trang thiết bị cần có trong thiết kế mặt bằng kho hàng
Sau khi làm theo 3 bước trong cách lập sơ đồ kho, dưới đây sẽ là 1 số lưu ý và kinh nghiệm giúp bạn vẽ sơ đồ kho hàng hợp lý, an toàn và hiệu quả.
- Khu vực nhận hàng cần có không gian rộng: Nhận hàng là hoạt động cần rất nhiều không gian nên bạn cần thiết kế khu vực nhận hàng đủ rộng. Các mặt hàng nhận vào kho cũng cần nhanh chóng di chuyển đến khu vực lưu trữ để lấy chỗ nhận hàng lần tiếp theo.
- Có không gian dành cho các máy móc: Khu vực dành riêng cho máy móc rất cần thiết nhất là với các kho hàng lớn, cần di chuyển có số lượng hàng lớn.
- Có cửa thông gió: Trong kho hàng cần có các cửa thông gió để đảm bảo an toàn cho hàng hoá, tránh ẩm mốc, đặc biệt là với các kho hàng không có cửa sổ.
- Đảm bảo đủ ánh sáng: Chắc chắn bạn sẽ không muốn làm việc trong 1 kho hàng tối tăm ẩm ướt. Chính vì thế cửa thông gió và ánh sáng là 2 yếu tố cơ bản mà bạn cần đảm bảo trong kho hàng. Đèn chiếu sáng cần bố trí đủ mật độ trong cả kho hàng, đặc biệt là những khu vực các sản phẩm bán chạy. Điều này sẽ giúp bạn hạn chế được nhầm lẫn khi hàng khi không đủ ánh sáng.
- Có máy nâng/thang: Các giá kệ trong kho hàng thường khá cao để tận dung không gian phía trên của kho hàng. Vì vậy, 1 kho hàng không thể thiếu các máy nâng, đối với các kho hàng nhỏ bạn nên chuẩn bị thang để có thể đặt hoặc lấy hàng ở trên cao dễ dàng, nhanh chóng.
- Trang bị bình cứu hoả: Kho hàng là khu vực dễ xảy ra cháy nổ nhất bởi lượng hàng hoá dày đặc cộng với các vật liệu dễ bắt lửa như pallet, carton,… Vì vậy hãy trang bị cho kho hàng đầy đủ bình chữa cháy phòng hoả hoạn.
- Có lối thoát hiểm khẩn cấp: Kho hàng cần thiết kế lối thoát hiểm để nhân viên làm việc trong kho hàng có thể thoát ra an toàn trong những trường hợp khẩn cấp.

Các khu vực chính cần có khi thiết kế mặt bằng kho hàng.
4. Kinh nghiệm vẽ sơ đồ kho an toàn, hợp lý
Lập sơ đồ kho hàng là 1 bước quan trọng, dưới đây là 1 số kinh nghiệm giúp bạn hoàn thiện thiết kế mặt bằng kho hàng.
- Chọn mẫu giá, kệ đỡ, loại pallet,… trước khi đưa vào thiết kế. Điều này sẽ giúp bạn có các kích thước chính xác của các thiết bị để thiết kế cho hợp lý. Cùng với đó, chủ kinh doanh cũng có thể tham khảo và nhận tư vấn lựa chọn giá, kệ phù hợp tại giá kệ Vinatech, đảm bảo tối ưu diện tích kho hiệu quả.
- Trao đổi với thủ kho và nhân viên làm việc trong kho để bố trí các khu vực trong kho sao cho thuận tiện và phù hợp với nhu cầu làm việc của họ.
- Thiết kế kho cần rõ ràng theo 1 luồng hoạt động kho khép kín và không bước nào trong quy trình quản lý kho gặp khó khăn hay bị khúc mắc khi sử dụng thiết kế mặt bằng kho này.
- Nếu bạn quan tâm đến vấn đề bảo mật thì chọn bố cục kho hình chữ I hoặc L.
- Các mặt hàng bán chậm nên sắp xếp vào phía sau, nhường chỗ cho các mặt hàng bán chạy phía trước.
- Có thể lập sơ đồ kho dự phòng để sử dụng cho những giai đoạn cao điểm hoặc khi hàng hoá có nhiều lên giúp bạn quản lý kho linh hoạt và hiệu quả trong mọi thời điểm.
- Kiểm tra lại bản thiết kế mặt bằng kho ít nhất 3 lần trước khi đưa vào thực hiện.
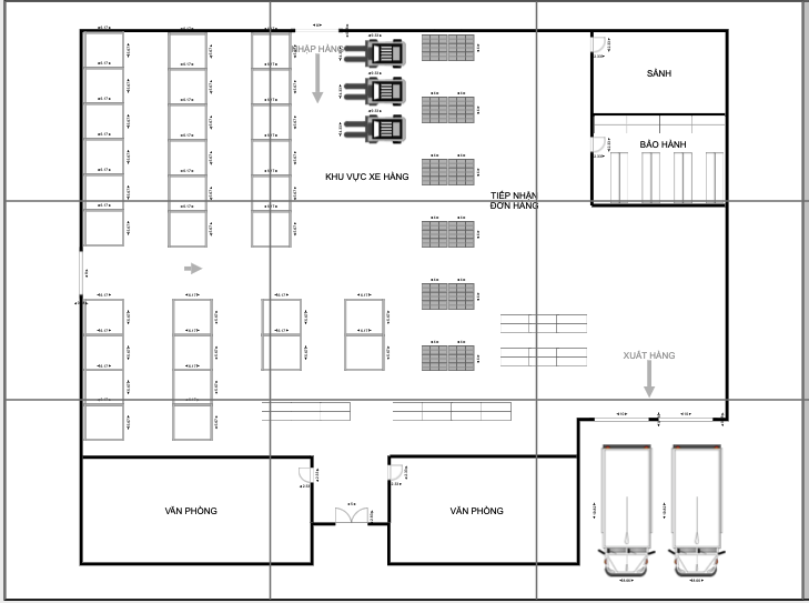
5. Một số mẫu sơ đồ kho hàng đơn giản cho các shop bán lẻ
Nếu chưa có kinh nghiệm thiết kế mặt bằng kho hàng, bạn có thể tham khảo 1 số mẫu sơ đồ kho hàng dưới đây để áp dụng cho cửa hàng bán lẻ của mình nhé!

Mẫu sơ đồ kho đơn giản.

Mẫu sơ đồ kho quy mô lớn.

Mẫu sơ đồ kho chuyên nghiệp.
Trên đây là hướng dẫn chi tiết các bước vẽ sơ đồ mặt bằng kho hàng, cách lập sơ đồ kho hợp lý và 1 số mẫu sơ đồ kho cho bạn tham khảo. Hy vọng với những kinh nghiệm Blog Sao tử vi chia sẻ, bạn sẽ quản lý kho hiệu quả cũng như có thể tối ưu quy trình xử lý đơn hàng, giúp đột phá doanh số bán hàng.










